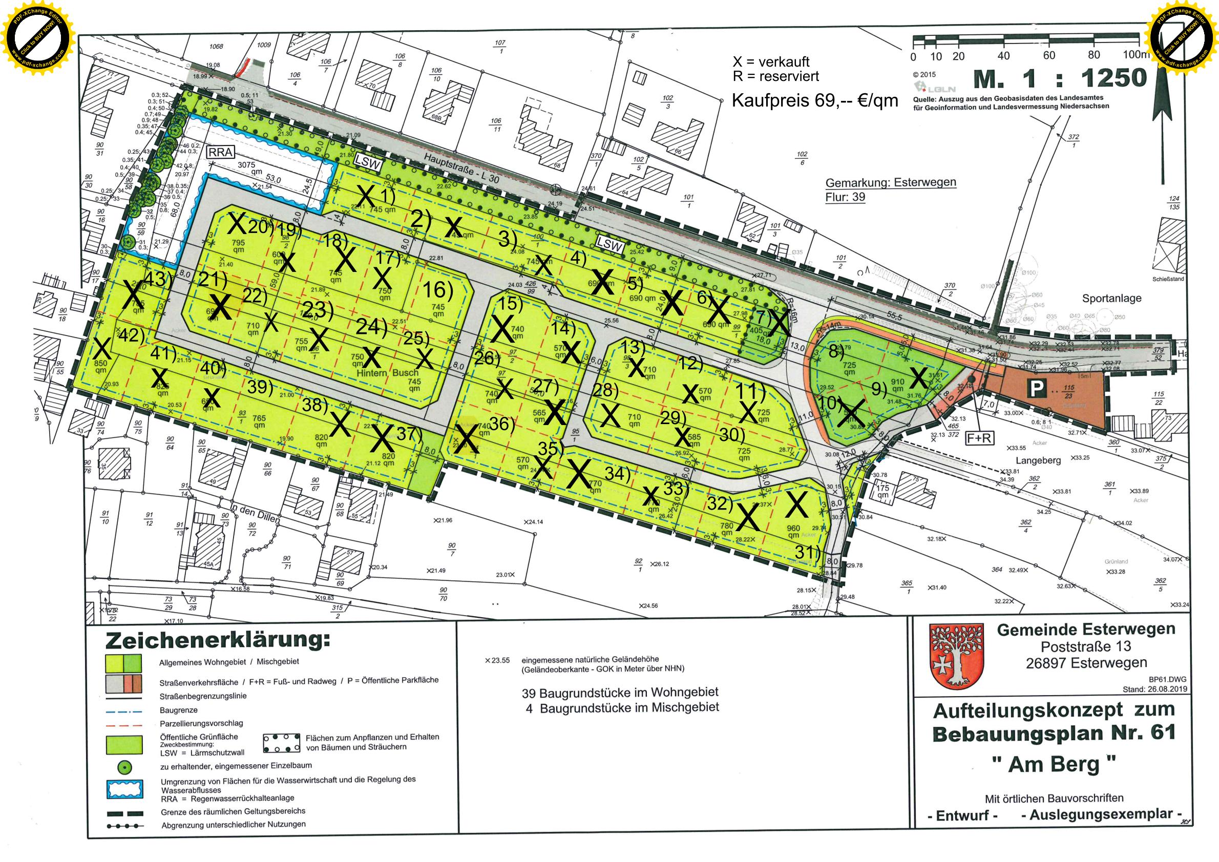
Bauplätze Esterwegen Freie Bauplätze Baugebiet Am Berg Baugebiet Südlich Lambertstraße/ Mühlenberg Baugebiet Heuweg-Erweiterung Ansprechpartner:Frau Karin Oldiges-Breckweg, Tel.: 05955/20034 teilen teilen teilen merken teilen drucken