Bebauungsplan - Gemeinde Hilkenbrook
Hinweis: Seite befindet sich noch im Aufbau. Liste noch unvollständig. Bei Fragen wenden Sie sich bitte direkt an das Bauamt.
Bebauungsplan
Nr. 3
Beschreibung
Bebauungsplan
Nr. 4
Südlich Fasanenweg
Beschreibung
1. Änderung
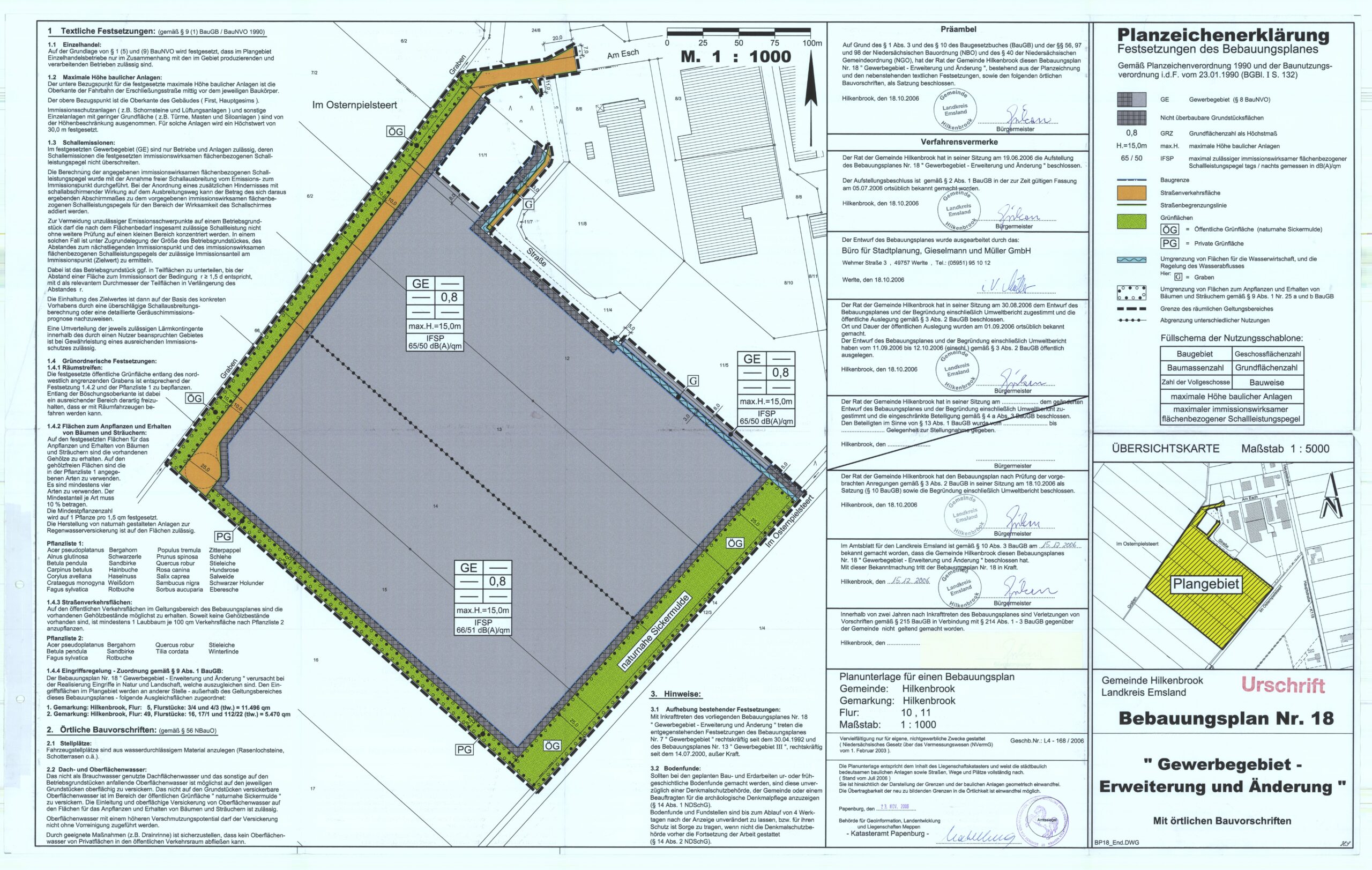
Bebauungsplan
Nr. 7
Gewerbegebiet
Beschreibung

Download Grünordnungsplan

Download Begründung

Download Erläuterungsbericht für den Grünordnungsplan

Download Berechnung der Schallausbreitung
Bebauungsplan
Nr. 8
Am Rittveengraben
Beschreibung

Download Grünordnungsplan

Download Begründung

Download Erläuterungsbericht zum Grünordnungsplan
Bebauungsplan
Nr. 8
Am Rittveengraben
Beschreibung
1. Änderung
Bebauungsplan
Nr. 9
östlich Wischweg
Beschreibung
Bebauungsplan
Nr. 9
östlich Wischweg
Beschreibung
1. Änderung
Bebauungsplan
Nr. 10
Gewerbegebiet II
Beschreibung
2. Änderung
Bebauungsplan
Nr. 19
Gewerbegebiet – Erweiterung und Änderung westlich der Hauptstraße
Beschreibung
Bebauungsplan
Nr. 19
Gewerbegebiet – Erweiterung und Änderung westlich der Hauptstraße
Beschreibung
1. Änderung
Bebauungsplan
Nr. 19
Gewerbegebiet – Erweiterung und Änderung westlich der Hauptstraße
Beschreibung
2. Änderung
Bebauungsplan
Nr. 22
Feuerwehr
Beschreibung
Bebauungsplan
Nr. 24
östlich Dahlienweg
Beschreibung